WEL 232B

Please choose the subassembly in the selection.

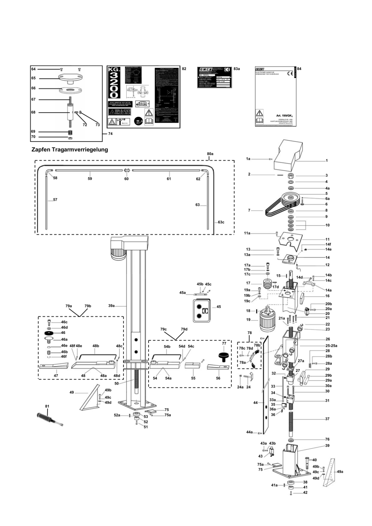
Selection of subassembly
control board
lifter complete

 

 

 

control board

Notice:

Please note that some parts only exist in the exploded drawings but not in the spare parts table.

These parts can not be ordered separately!

PosArticle No.DesignationSerial-No.Picture
1W111400052SP-PCBall 
2W111400053SP-CONTACTall 
2W111400054SP-BUTTONall 
4W111400050SP-TRANSFORMERall 
5W111400048SP-HOLDERall 
5W111400049SP-FUSEall 
6W111400051SP-FUSEall 
6W111400057SP-HOLDERall 
7W111400055SP-SWITCHall 

lifter complete

Notice:

Please note that some parts only exist in the exploded drawings but not in the spare parts table.

These parts can not be ordered separately!

PosArticle No.DesignationSerial-No.Picture
7W111400045SP-BELTall 
8W111400042SP-BEARINGall 
10W111400043SP-BEARINGall 
12W111400056SP-SENSORall 
20W111400058SP-SWITCHall 
23W111400039SP-BLOCKall 
38W111400044SP-BEARINGall 
46W111400041SP-PADall 
81W111400040SP-PUMPall